Cannabis

Adaptive Reuse, Interior Architecture + Design, Environmental Graphics, Schematic Design, License Application Designs

These projects span the United States, with some built works completed in collaboration with local architects, engineers, interior designers, and / or construction firms. I contributed at various stages, providing architectural and interior design services before handing off detailed drawings to clients and their designated general contractors for the build-out.

Since 2010, I have designed for the regulated cannabis and hemp industries nationwide, fostering lasting partnerships and collaborations. My work includes designing processing facilities, cultivation sites, retail dispensaries, and creating award-winning cannabis brands, collateral, and compliant packaging. With over a decade of experience in an industry subject to intense scrutiny and rigorous standards, I have honed my ability to navigate complex challenges while driving innovation and sustainability. Through a multidisciplinary design approach that spans media, scales, and disciplines, I strive to enhance the connections between built, natural, and biological environments, and leverage the incredible potential of this plant to inspire positive social, environmental, and economic impact.


Branding design, facility design, environmental graphics


Branding design and dispensary schematic layout


Production facility layout, packaging design, booth design


Branding design, packaging design and dispensary schematic layout


Dispensary facade design, interior consulting, branding suite, signage design


Production and extraction facility design, facility general contracting, full branding suite including over a decade of designs for packaging, exhibit booths, environmental graphics, and all marketing materials


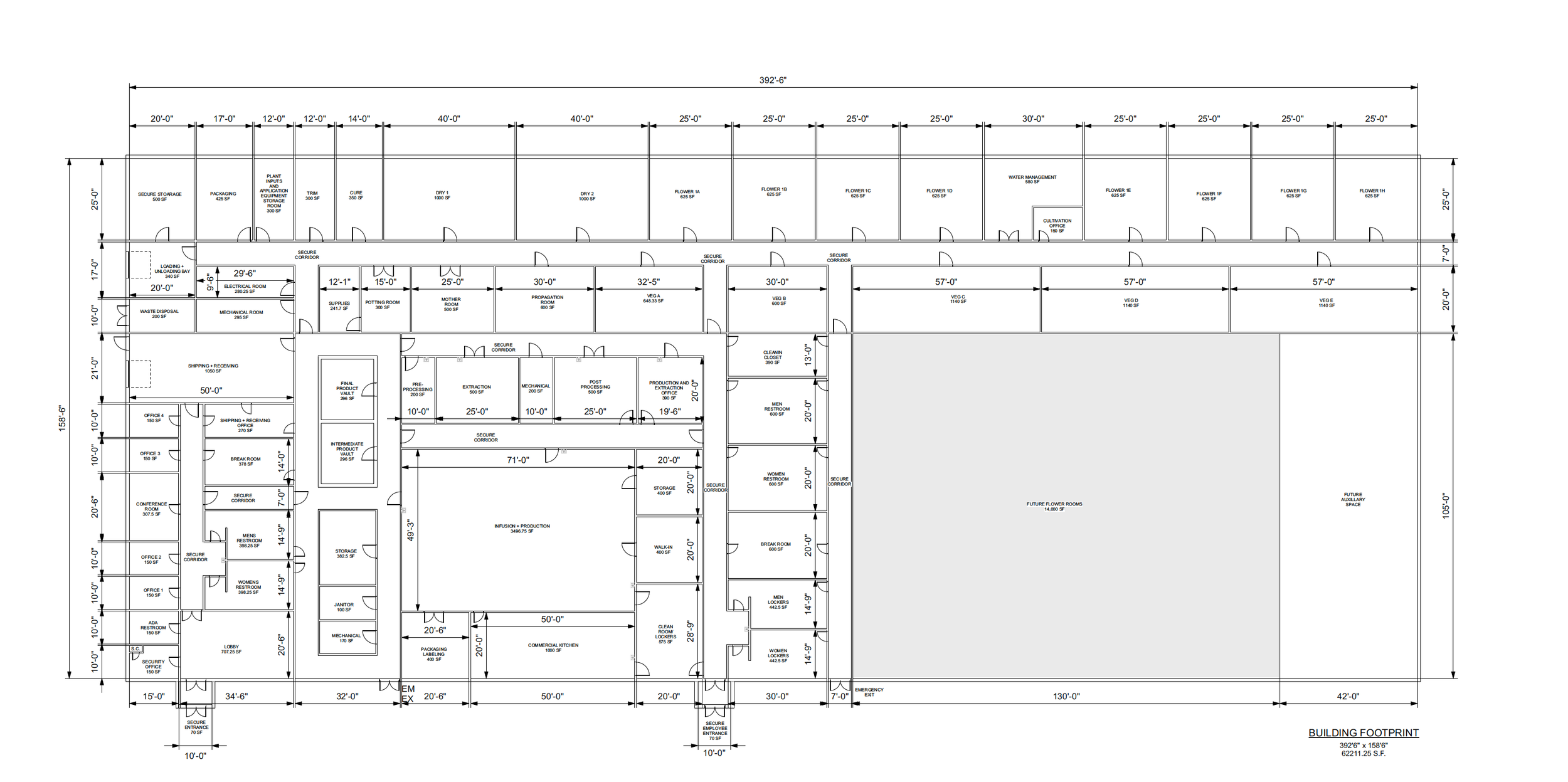
Site plan, vertically integrated schematic design - cultivation, production, extraction, dispensary


Site plan, vertically integrated schematic design - cultivation, production, extraction, dispensary


Site plan, vertically integrated schematic design - cultivation, production, extraction, dispensary


Schematic designs for a variety of clients around the country including Arkansas Empathic Therapeutics, AgriMed, Cannical, Endless Timber, BigKahuna, BluePlanet, Cannanat, Charles, Grow Washoe, Ivan, Two Buds, Medmar, Moonrock, Redbird, New Antelope, Billingsly, Liberty Group, Partners Tinsley, Ponessa, RedLotus, Quest Ice Miller, and Seven Points


Previous
Previous

RI Rec Hall Residence